2e Antonie Heinsiusstraat 114 - Den Haag

Bekijk 43 foto's
Bekijk 43 foto's
Bekijk 43 foto's

Heb je interesse?

Neem contact met ons op. We geven graag meer informatie of plannen een bezichtiging.

Omschrijving

*English text below*


Je vindt deze indrukwekkende woning in het zeer gewilde Statenkwartier, met alles wat je je maar kunt wensen: royale leefruimtes, een inpandige garage, een zonnige achtertuin, een terras en balkon op het zuidoosten, een aparte werkruimte en vijf ruime slaapkamers.

De indeling is ideaal voor gezinnen die thuis willen werken, van het buitenleven willen genieten en graag vrienden en familie ontvangen. Hoge plafonds en grote kamers zorgen voor veel licht en een luchtige sfeer in het hele huis. Recentelijk zijn twee nieuwe badkamers geplaatst, nieuwe deuren aangebracht en wanden op de bovenverdiepingen gestuct en geschilderd.

Statenkwartier is een charmante, internationale buurt, bekend om de gezellige winkelstraat “de Fred”, en ligt perfect tussen het bruisende stadscentrum en het strand. Dit royale herenhuis met prachtige hoge plafonds combineert charme, comfort, stijl en dat op een toplocatie.


Indeling:
Je komt binnen in een royale, lichte hal. Vanuit de hal bereik je de gang met toegang tot de woonkamer, een modern toilet met fonteintje én de deur naar de garage. De garage heeft een eigen uitrit met verlaagde stoeprand en dubbele deuren, waardoor er voldoende ruimte is voor een auto, maar ook uitstekend te gebruiken als hobbyruimte, kantoor, praktijk of extra leefruimte.

De L-vormige woon-/eetkamer is een verrassend licht en luchtig geheel, dankzij de hoge vide en de grote ramen in de zijgevel die de zon prachtig binnenlaten. De open keuken is modern uitgerust met diverse inbouwapparatuur en via de openslaande deuren stap je zo de zonnige achtertuin in.

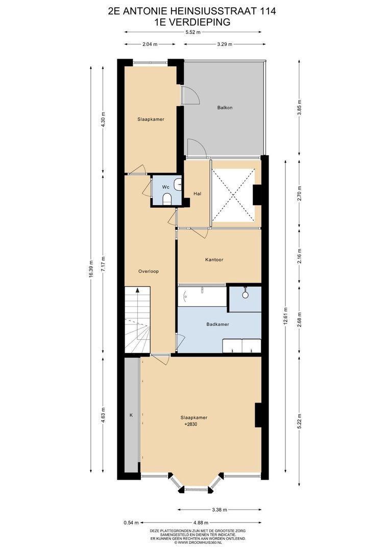
Via het strak gestucte en recent geschilderde trappenhuis bereik je de eerste verdieping. Aan de voorzijde bevindt zich de royale master bedroom over de volledige breedte, voorzien van een erker en een vaste kastenwand. De onlangs gerenoveerde, luxe badkamer is uitgerust met een ligbad, ruime inloopdouche en dubbele wastafel. Aan de vide ligt een prettige kantoorruimte met toegang tot het ruime terras. Aan de achterzijde bevindt zich een tweede slaapkamer en in de gang een tweede moderne toilet.

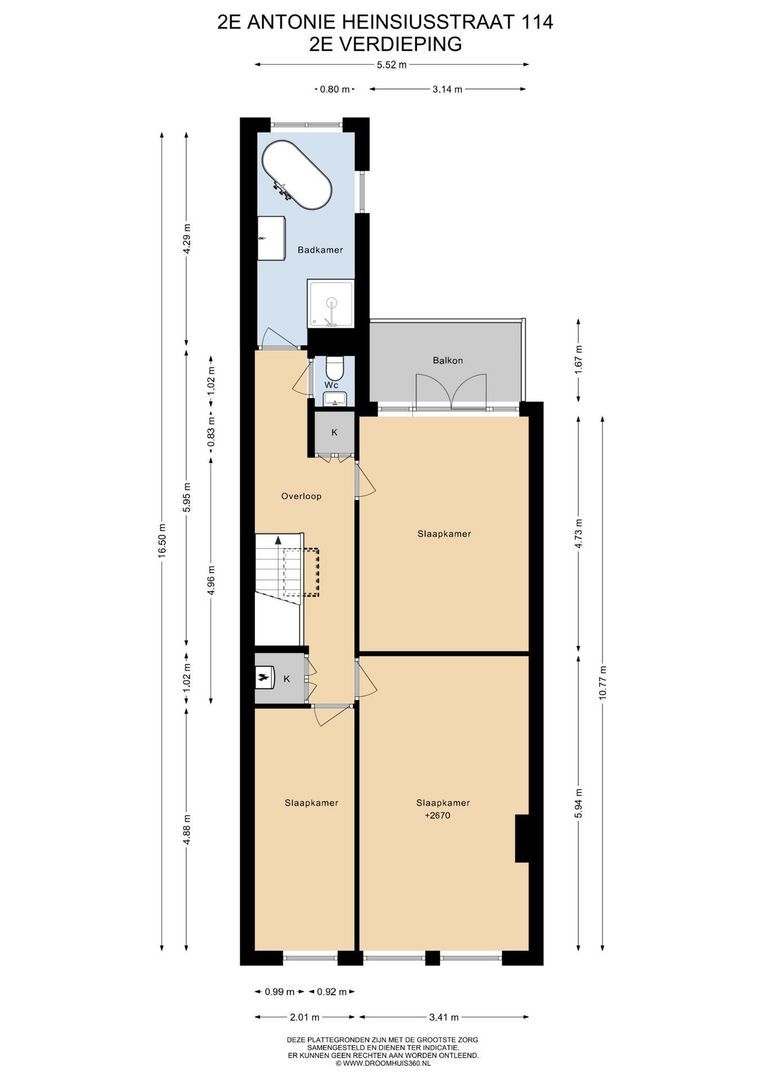
Op de tweede verdieping is een ruime overloop met bergkast en vernieuwd derde toilet. Op deze verdieping bevinden zich drie comfortabele en ruime slaapkamers. Het klapstuk is de recent gerenoveerde en geïsoleerde luxe tweede badkamer aan de achterzijde. Dankzij de moderne afwerking, het vrijstaande bad, de ruime inloopdouche en het houten wastafelmeubel waan je je werkelijk in een wellness-centrum. De slaapkamer aan de achterzijde heeft toegang tot het derde buitenverblijf, een heerlijk balkon met vrij uitzicht.


Goed om te weten:
- Gelegen op eigen grond
- 220 m² woonoppervlakte + 20 m² garage
- Balkon, dakterras en 50 m² tuin gelegen op het zuidoosten
- 5 slaapkamers, een kantoor en 2 badkamers
- Mogelijkheid om de garage in gebruik te nemen als kantoor, hobbykamer of leefruimte
- Vanwege het oorspronkelijke bouwjaar zullen de ouderdoms- en materialenclausule worden opgenomen in de koopovereenkomst


Recentelijk verbeterd/vernieuwd:
- Extreem zuinige CV ketel (oktober 2024)
- Nieuw veiligheidsglas in het raam en deuren op de begane grond aan de straatkant
- Meeste deuren van bovenverdiepingen vernieuwd
- Strak gestucte en recent geschilderde wanden en plafonds op de meeste muren en plafonds van de bovenverdiepingen
- Nieuwe schuur in de tuin
- Trapbekleding vernieuwd
- Overal houten vloeren, tweede etage is recentelijk geïnstalleerd 'engineered wood'
- Nieuwe badkamer 1e etage
- Nieuw toilet 2e etage
- Nieuwe badkamer 2e etage inclusief complete isolatie rondom
- Complete schoorsteen van het dak verwijderd
- Betonnen latei balkon 2e etage aangebracht


Benieuwd naar deze bijzondere woning? Plan een één-op-één bezichtiging met Koenders Makelaardij en ervaar zelf de ruimte, het licht en de sfeer van dit prachtige herenhuis.


-----------------------------------------------------------------------------------------------------------------------------------------


Curious about this unique property? Schedule a private viewing with Koenders Makelaardij and experience the space, light, and atmosphere of this beautiful mansion for yourself.


This exciting property is situated in a sought-after area in the popular Statenkwartier and has everything you could wish for: plenty of living space, an indoor garage, a sunny back garden, a terrace and balcony facing southeast, an office and five bedrooms. The property’s layout is exceptional and suitable for families, who want to work from home, enjoy the outdoors, and host family and friends. High ceilings and large rooms provide plenty of light and an airy atmosphere throughout the house. Recently, two new bathrooms have been installed, new doors fitted, and walls on the upper floors plastered and painted.

Statenkwartier is a charming, international neighborhood, known for its lively shopping street “de Fred,” and is perfectly located between the bustling city center and the beach. This spacious mansion with beautiful high ceilings combines charm, comfort, style, and a prime location.


Layout:
You enter a spacious, bright hall. From the hall, you reach the corridor with access to the living room, a modern toilet with washbasin, and the door to the garage. The garage has its own exit with a lowered curb and double doors, providing enough space for a car, but also ideal for use as a hobby room, office, practice, or extra living space.

The L-shaped living/dining room is surprisingly light and airy, thanks to the extraordinary high ceiling and large windows in the side wall that let in plenty of sunlight. The open kitchen is modernly equipped with various built-in appliances, and French doors lead directly to the sunny backyard.

The sleekly plastered and recently painted staircase leads to the first floor. At the front is the spacious master bedroom, which spans the entire width of the house and features a bay window and built-in wardrobes. The recently renovated, luxurious bathroom is equipped with a bathtub, spacious walk-in shower, and double sink. Office and along the landing with a view into the lounge you walk onto the terrace. At the rear is a second bedroom and a second modern toilet in the hallway.

The second floor features a spacious landing with storage cupboard and renovated third toilet. This floor also has three comfortable and spacious bedrooms. The highlight is the recently renovated and insulated luxury second bathroom at the rear. Thanks to the modern finish, the freestanding bath, the spacious walk-in shower, and the wooden washbasin, you really feel like you are in a wellness center. The bedroom at the rear has access to the third spacious outdoor area, a lovely balcony with unobstructed views.


Good to know:
- Situated on private land/freehold
- 220 m² living space + 20 m² garage
- Balcony, roof terrace and 50 m² garden facing southeast
- 5 bedrooms, an office and 2 bathrooms
- Possibility to use the garage as an office, hobby room or living space
- Due to the original year of construction, the age and materials clause will be included in the purchase agreement

Recently improved/renovated:
- Energy efficient CV installation (installed in October 2024)
- New security glass in the window and doors on the ground floor on the street side
- Most doors on upper floors renewed
- Most walls and ceilings on upper floors plastered and painted
- New shed in the garden
- Stair carpets renewed
- Wooden floors everywhere, second floor recently installed 'engineered wood'.
- New bathroom 1st floor
- New toilet 2nd floor
- New bathroom 2nd floor including complete insulation all around
- Complete chimney removed from the roof
- Concrete lintel balcony 2nd floor installed

Kenmerken

Aanvaarding

Prijs
€ 1.175.000 k.k.
Status
Beschikbaar
Oplevering
In overleg
Adres
2e Antonie Heinsiusstraat 114
Postcode
2582 VX
Plaats
Den Haag

Bouw

Soort woonhuis
Herenhuis, Tussenwoning
Soort bouw
Bestaande bouw
Bouwjaar
1910
Onderhoud binnen
Goed
Onderhoud buiten
Goed
Bijzonderheden
Beschermd stads- of dorpgezicht

Oppervlakten en inhoud

Woonoppervlakte
ca. 222m²
Perceeloppervlakte
ca. 145m²
Oppervlakte woonkamer
ca. 44m²
Overig oppervlakte
ca. 19m²
Inhoud
ca. 931m³

Indeling

Aantal kamers
8
Aantal slaapkamers
6
Aantal badkamers
2
Aantal verdiepingen
3
Voorzieningen
Mechanische ventilatie, TV-Kabel, Dakraam, Natuurlijke ventilatie

Energie

Energielabel
C
Isolatie
Muurisolatie, Vloerisolatie, Dubbel glas
Warm water
C.V.-ketel
Verwarming
C.V.-ketel
Ketel
Intergas Xtreme 36 (2024, Combi-ketel, Eigendom)

Buitenruimte

Ligging
Aan rustige weg, In woonwijk
Balkon
Ja
Tuin
Achtertuin, Zonneterras
Achtertuin
Zuidoost, 52m², 595×878cm

Garage

Soort garage
Inpandig
Capaciteit
1
Afmetingen
19m², 322×598

Locatie

[ { "address": "2e Antonie Heinsiusstraat 114", "zipCode": "2582 VX", "city": "Den Haag", "lat": 52.0871084, "lng": 4.2735874, "heading": 0, "pitch": 0 } ]

Bekijk verloop van de zon

Uw browser ondersteunt geen WebGL

Interesse? Neem contact met ons op

We vertellen graag meer over onze dienstverlening. Bel of mail voor een afspraak.

Uw bericht is naar ons verzonden. Wij nemen zo snel mogelijk contact met u op.

Sorry, we kunnen helaas niet met zekerheid vaststellen of je een mens of een geautomatiseerde bot/spammer bent. Hierdoor kunnen we het formulier dat je hebt ingevuld niet verzenden. Probeer het opnieuw of neem direct contact op met de makelaar via e-mail.

Er is iets mis gegaan met het versturen van het formulier.
Controleer of u alle velden (goed) heeft ingevoerd en probeer het nog een keer.

recaptcha
reCAPTCHA
PrivacyTerms
telefoon

Liever telefonisch contact?

Je kunt ons van maandag t/m vrijdag van 08:30 tot 18:00 bereiken op

070 - 365 53 39

Neem contact op