Beeklaan 214 - Den Haag

Bekijk 35 foto's
Bekijk 35 foto's
Bekijk 35 foto's

Heb je interesse?

Neem contact met ons op. We geven graag meer informatie of plannen een bezichtiging.

Omschrijving

Sfeervolle en moderne parterrewoning met stadstuin in het Regentessekwartier

In het populaire Regentessekwartier in Den Haag ligt deze sfeervolle en goed onderhouden parterrewoning met dubbele achteruitbouw. De woning is praktisch ingedeeld, goed geïsoleerd en van alle moderne gemakken voorzien – ideaal voor wie comfortabel en gelijkvloers wil wonen in een levendige stadsomgeving. Het goede energielabel C draagt bij aan een prettig wooncomfort en lagere energielasten.

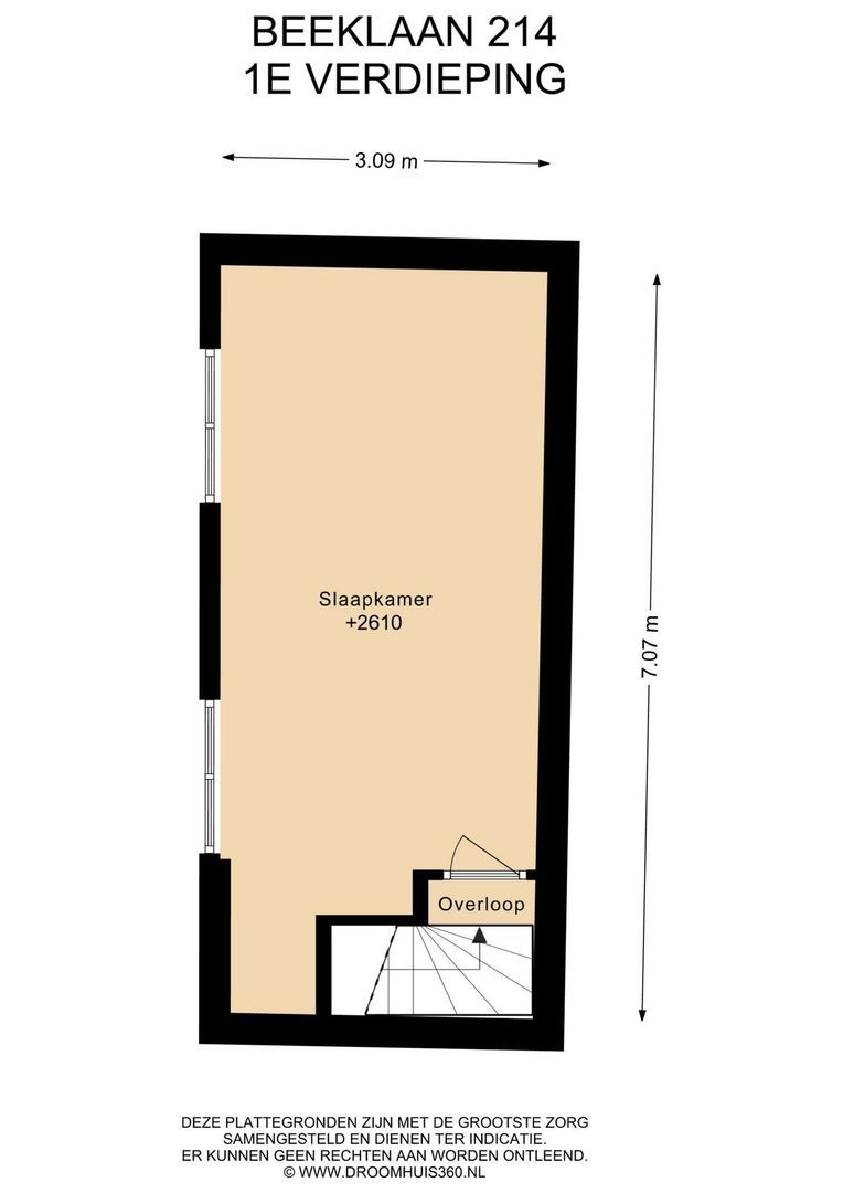
Indeling: entree met tochtportaal en gang met volop ruimte voor jassen en schoenen, aparte ruimte met cv en wasmachine-aansluiting, modern toilet, dubbele deuren naar de grote en lichte woonkamer met hoge plafonds en toegang tot de leuke stadstuin met berging, moderne open keuken met de bekende inbouwapparatuur, prima en modern afgewerkte badkamer met inloopdouche. In de achterbouw is een grote slaapkamer met volop ramen en een handige bergruimte. Op de eerste etage is de tweede, eveneens royale slaapkamer.

Gelegen om de hoek bij de Weimarstraat met haar grote variatie aan winkels en gezellige cafés en restaurants, is dit een fijne plek om te wonen met alle voorzieningen binnen handbereik. Ook de gezellige Fahrenheitstraat en de Reinkenstraat liggen op loopafstand. Binnen een kwartier fietsen ben je in de Haagse binnenstad of in de duinen!

Details:

· Gelegen op eigen grond in het populaire Regentessekwartier
· 110 m2 woonoppervlakte
· Goed geïsoleerd en voorzien van dubbel glas
· Energielabel C
· Houten vloeren door het gehele appartement
· Kleine VvE (2 leden), 1/3e aandeel, € 156 p/m
· MJOP aanwezig
- gemeentelijk beschermd stadsgezicht
· Ouderdoms-, materialenclausules van toepassing
· Oplevering in overleg

Interesse? Deze woning is zeker een bezichtiging waard!

Kenmerken

Aanvaarding

Prijs
€ 549.000 k.k.
Status
Beschikbaar
Oplevering
In overleg
Adres
Beeklaan 214
Postcode
2562 AR
Plaats
Den Haag

Bouw

Soort appartement
Benedenwoning, Appartement
Woonlaag
1
Soort bouw
Bestaande bouw
Onderhoud binnen
Uitstekend
Onderhoud buiten
Goed

Oppervlakten en inhoud

Woonoppervlakte
ca. 110m²
Inhoud
ca. 436m³

Indeling

Aantal kamers
3
Aantal slaapkamers
2
Aantal badkamers
1
Aantal verdiepingen
2
Voorzieningen
Mechanische ventilatie

Energie

Energielabel
C
Isolatie
Dubbel glas
Warm water
C.V.-ketel
Verwarming
C.V.-ketel
Ketel
AWB (2018, Combi-ketel, Eigendom)

Buitenruimte

Ligging
In woonwijk
Tuin
Achtertuin
Achtertuin
Zuid, 16m², 2×8cm
Schuur
Vrijstaand hout

Locatie

[ { "address": "Beeklaan 214", "zipCode": "2562 AR", "city": "Den Haag", "lat": 52.0745322, "lng": 4.2806765, "heading": 0, "pitch": 0 } ]

Bekijk verloop van de zon

Uw browser ondersteunt geen WebGL

Interesse? Neem contact met ons op

We vertellen graag meer over onze dienstverlening. Bel of mail voor een afspraak.

Uw bericht is naar ons verzonden. Wij nemen zo snel mogelijk contact met u op.

Sorry, we kunnen helaas niet met zekerheid vaststellen of je een mens of een geautomatiseerde bot/spammer bent. Hierdoor kunnen we het formulier dat je hebt ingevuld niet verzenden. Probeer het opnieuw of neem direct contact op met de makelaar via e-mail.

Er is iets mis gegaan met het versturen van het formulier.
Controleer of u alle velden (goed) heeft ingevoerd en probeer het nog een keer.

recaptcha
reCAPTCHA
PrivacyTerms
telefoon

Liever telefonisch contact?

Je kunt ons van maandag t/m vrijdag van 08:30 tot 18:00 bereiken op

070 - 365 53 39

Neem contact op