Weissenbruchstraat 121 - Den Haag

Bekijk 37 foto's
Bekijk 37 foto's
Bekijk 37 foto's

Heb je interesse?

Neem contact met ons op. We geven graag meer informatie of plannen een bezichtiging.

Omschrijving

Dubbel bovenhuis met royaal dakterras en originele details


Aan de Weissenbruchstraat ligt dit sfeervolle eindgevel dubbele bovenhuis met eigen entree, verdeeld over twee verdiepingen en voorzien van een royaal dakterras van 32 m². Karakteristieke elementen zoals glas-in-loodramen, originele schouwen en een kamer en suite met schuifseparatie geven de woning veel sfeer, terwijl de indeling prettig aansluit op hedendaags wooncomfort. Dankzij de hoekligging en de hoge verdiepingen valt het daglicht opvallend mooi naar binnen. Een ruim en karaktervol huis op een geliefde locatie in Den Haag.


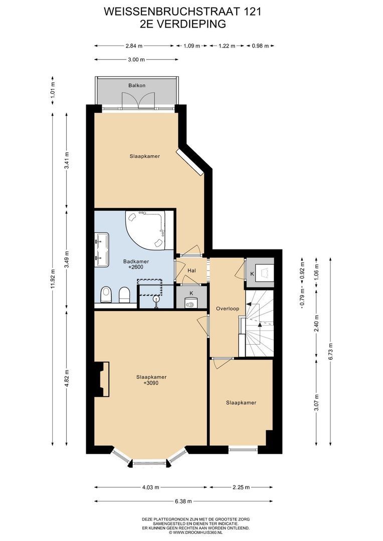
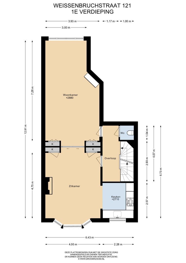
Indeling
Via de eigen entree en trapopgang wordt de eerste verdieping bereikt. Hier bevindt zich de royale woonkamer met originele ensuite deuren, prachtig glas in lood en originele schouwen. De kamer en suite verbindt de zitkamer met de eetkamer en zorgt voor een prettige scheiding tussen wonen en tafelen. Aansluitend ligt de moderne open keuken aan de voorzijde. Op de overloop bevindt zich het eerste toilet van deze woning.

De tweede verdieping telt drie slaapkamers. Aan de voorzijde ligt de grootste slaapkamer, daarnaast een tweede slaapkamer van goed formaat. Aan de achterzijde bevindt zich een derde ruime slaapkamer met toegang tot het balkon gelegen op het zuidoosten. De ruime badkamer is compleet ingericht met een ligbad, inloopdouche, dubbele wastafel, toilet en bidet. De lichtkoepel in de badkamer zorgt voor fijn daglicht. Op de overloop een praktische bergkast met daarin de aansluitingen voor de wasmachine.

Via de volgende vaste trap wordt het hoogste niveau van de woning bereikt: het royale dakterras van 32 m². Door de vrije ligging is hier volop zon aanwezig: vanaf de late ochtend, gedurende de middag en tot in de avonduren. Een buitenruimte die uitnodigt om op elk moment van de dag comfortabel buiten te zitten.


Ligging:
De woning ligt aan de Weissenbruchstraat in een prettige woonomgeving in Benoordenhout, met winkels, scholen, openbaar vervoer en uitvalswegen op korte afstand. Ook groenvoorzieningen en diverse horecagelegenheden bevinden zich in de directe omgeving.


Tot slot
Een karakteristieke woning met veel leefruimte, originele details en aantrekkelijke buitenruimtes op een gewilde plek in de stad.


Goed om te weten:
* Gelegen op eigen grond
* 2/3e aandeel in de actieve VvE
* Volledig voor zien van dubbel glas
* Vloerverwarming in de badkamer
* Rapport bouwkundige keuring aanwezig
* Vergunning dakterras aanwezig
* Oplevering in overleg
* Vanwege het originele bouwjaar zullen de materialen- en ouderdomsclausules in de koopovereenkomst worden opgenomen

Kenmerken

Aanvaarding

Prijs
€ 725.000 k.k.
Bijdrage VVE
€ 150
Status
Beschikbaar
Oplevering
In overleg
Adres
Weissenbruchstraat 121
Postcode
2596 GD
Plaats
Den Haag

Bouw

Soort appartement
Bovenwoning, Dubbel bovenhuis
Woonlaag
2
Soort bouw
Bestaande bouw
Bouwjaar
1929
Onderhoud binnen
Goed
Onderhoud buiten
Goed
Bijzonderheden
Beschermd stads- of dorpgezicht

Oppervlakten en inhoud

Woonoppervlakte
ca. 132m²
Oppervlakte woonkamer
ca. 49m²
Inhoud
ca. 486m³

Indeling

Aantal kamers
5
Aantal slaapkamers
3
Aantal badkamers
1
Aantal verdiepingen
2
Voorzieningen
Mechanische ventilatie

Energie

Energielabel
E
Isolatie
Dubbel glas
Warm water
C.V.-ketel
Verwarming
C.V.-ketel
Ketel
Vaillant VHR eco TEC plus 35-38 / 5-5 CW 5 (2014, Combi-ketel, Eigendom)

Buitenruimte

Ligging
In woonwijk
Balkon
Ja
Tuin
Zonneterras
Zonneterras
Zuid, 32m², 433×816cm

Locatie

[ { "address": "Weissenbruchstraat 121", "zipCode": "2596 GD", "city": "Den Haag", "lat": 52.0909817, "lng": 4.3230112, "heading": 0, "pitch": 0 } ]

Bekijk verloop van de zon

Uw browser ondersteunt geen WebGL

Interesse? Neem contact met ons op

We vertellen graag meer over onze dienstverlening. Bel of mail voor een afspraak.

Uw bericht is naar ons verzonden. Wij nemen zo snel mogelijk contact met u op.

Sorry, we kunnen helaas niet met zekerheid vaststellen of je een mens of een geautomatiseerde bot/spammer bent. Hierdoor kunnen we het formulier dat je hebt ingevuld niet verzenden. Probeer het opnieuw of neem direct contact op met de makelaar via e-mail.

Er is iets mis gegaan met het versturen van het formulier.
Controleer of u alle velden (goed) heeft ingevoerd en probeer het nog een keer.

recaptcha
reCAPTCHA
PrivacyTerms
telefoon

Liever telefonisch contact?

Je kunt ons van maandag t/m vrijdag van 08:30 tot 18:00 bereiken op

070 - 365 53 39

Neem contact op